










Maison 3 chambres avec jardin et garage dans un nouveau quartier au cœur de Templeuve.
Prestations
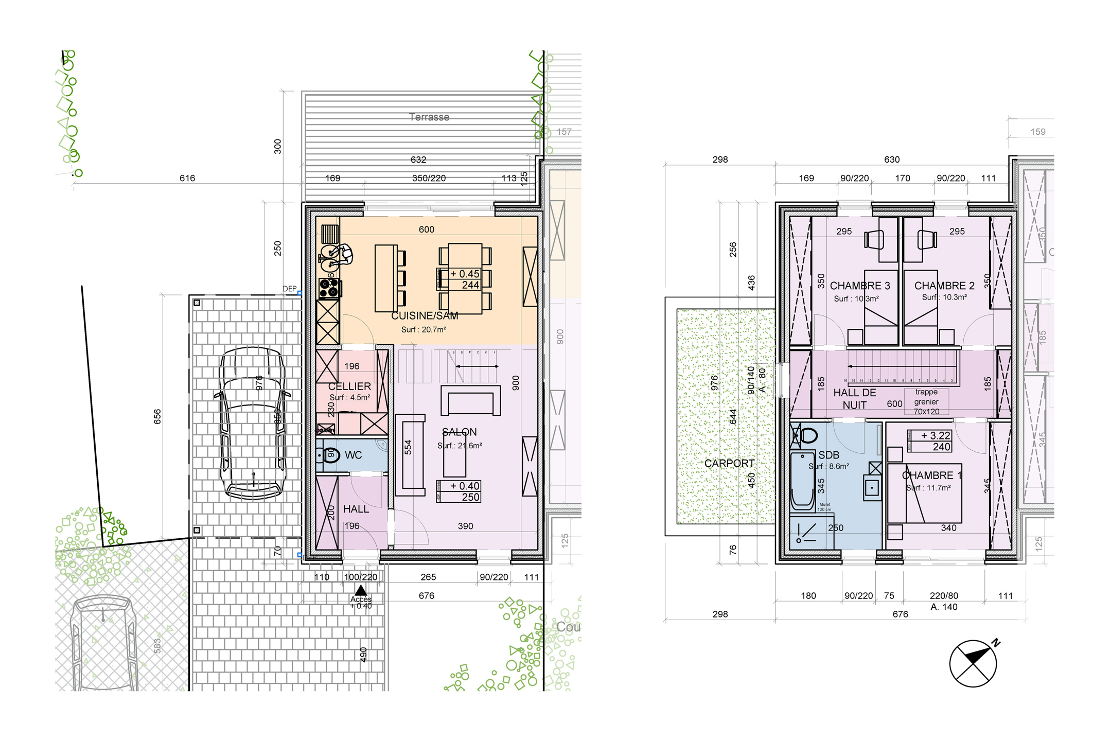
- Agencement (RDC) : hall d`entrée avec WC séparé avec lave-mains, séjour avec cuisine équipée ouverte (7.000 € HTVA), cellier, coin buanderie
- Agencement (étage) : 3 chambres, salle de bain avec baignoire, douche 120 x 90 cm, meuble vasque, miroir et WC
- Espaces extérieurs : devanture, jardin, terrasse et clôtures
- Confort et commodités : carport, place de parking, citerne de récupération d’eau de pluie de 10.000 litres
Finitions
- Menuiseries : châssis PVC gris anthracite double vitrage, portes intérieures prêtes à peindre, seuils en pierre bleue, escalier en rubberwood
- Chauffage : chauffage central au gaz de ville, chaudière de marque Buderus, radiateurs
- Ventilation : VMC simple flux de type C+
- Revêtements de sol : carrelage au choix avec plinthes assorties pour le rez-de-chaussée et la salle de bain et le hall de nuit à l’étage d`une valeur de 35€/m² HTVA, grès CERAM (30 x 30) d`une valeur de 20€/m² HTVA pour le garage
PEB visé A
Livraison prévue à l`acte
Prix affichés hors frais - Vente sous régime des droits d`enregistrement (12,5 %) sur le terrain, éligible à 3 % sous conditions, et de la TVA sur la construction (21 %)
Renseignements et visite : Alexandra au +32 472 27 03 42
Retrouvez toutes les informations sur ce projet sur notre site www.immoaplus.be
Les surfaces indiquées ne sont pas des surfaces habitables mais des surfaces brutes, selon le code de mesurage appliqué en Belgique
Publicité à caractère non contractuel et ne constituant pas une offre
Les propriétaires se réservent le droit de décision, d`acceptation ou non sur toute(s) offre(s) soumise(s) pour leur bien
,
Boutiques : oui
Transport en commun : -
Ecoles : -
Salle de Sport : -
Autoroute : oui
De la terrasse : nord-ouest