Appartement 1 chambre au cœur d`un écrin de verdureA vendre

Appartement Mouscron

195 000€

En quelques mots

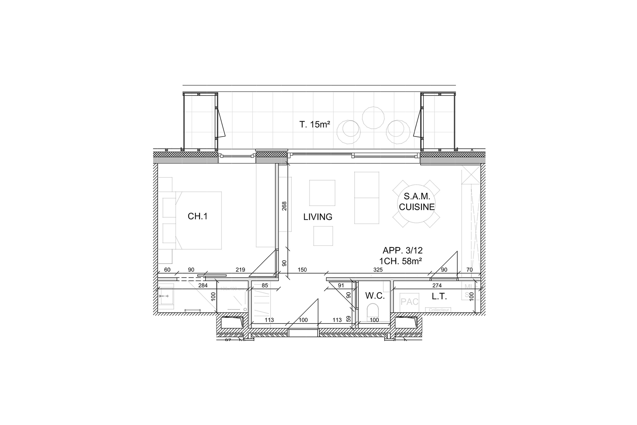
Appartement 1 chambre au cœur d`un écrin de verdure en plein centre de Mouscron.Prestations- Agencement : Hall d`entrée avec placard en bois stratifié intégré, wc séparé avec lave-mains, séjour avec cuisine équipée, 1 chambre, salle de bain avec douche et meuble vasque- Espaces extérieurs : terrasse en béton architectonique avec local de rangement et claustras- Confort et [..]

Appartement 1 chambre au cœur d`un écrin de verdure en plein centre de Mouscron.

Prestations
- Agencement
: Hall d`entrée avec placard en bois stratifié intégré, wc séparé avec lave-mains, séjour avec cuisine équipée, 1 chambre, salle de bain avec douche et meuble vasque
- Espaces extérieurs : terrasse en béton architectonique avec local de rangement et claustras
- Confort et commodités : panneaux photovoltaïques fournissant une partie de l`électricité nécessaire aux espaces communs

Finitions
- Menuiseries
: isolation thermique et acoustique, menuiseries extérieures alu, profilés à coupure thermique noirs à l`extérieur et blancs à l`intérieur, garde-corps vitrés, portes intérieures prêtes à peindre, encadrement en MDF à peindre
- Chauffage : chauffage au sol par pompe à chaleur, sèche-serviette dans la salle de bain, ballon d`eau chaude de 200 L,
- Ventilation : système de ventilation Duco
- Revêtements de sol : carrelage 60 x 60 cm au choix de l`acquéreur
- Sécurité : détection incendie dans les communs, détecteurs autonomes dans les appartements, vidéophone

Possibilité d’acquérir un garage (à partir de 35.000 € HTVA) ou un double-garage (à partir de 55.000 € HTVA) avec porte sectionnelle motorisée et possibilité d`installer une borne de chargement électrique

PEB visé : A+

Investisseurs >>> Loyer prévisionnel : 680 €

Livraison prévue à l`acte

Prix affichés hors frais - Vente sous loi Breyne et sous régime de la TVA sur la construction (21 %), éligible à 6% sous conditions

Renseignements et visite : Alexandra au +32 472 27 03 42

Retrouvez toutes les informations sur ce projet sur notre site www.immoaplus.be

Les surfaces indiquées ne sont pas des surfaces habitables mais des surfaces brutes, selon le code de mesurage appliqué en Belgique
Publicité à caractère non contractuel et ne constituant pas une offre
Les propriétaires se réservent le droit de décision, d`acceptation ou non sur toute(s) offre(s) soumise(s) pour leur bien

Lire plus

Situation

  • Adresse : Mouscron

En Vidéo

Détails

  • Ref : 4847310
  • Type : Appartement
  • Prix : 195 000€
  • Chambre(s) : 1
  • Etat général : Neuf
  • Salle de bain : 1
  • Garage(s): 1 + 1
  • Cuisine : équipée
  • Chauffage : chauffage au sol

  • Habitation de 58m2

Energies

  • Conso Spécifique 37 KwH/m².an
  • Conso théorique totale 2101 KwH/an
  • N° cert. 20250612506383
  • Electricité oui, conforme

A proximité

Environnement

centre ville,

Commodités

Boutiques : oui

Transport en commun : oui

Ecoles : oui

Salle de Sport : -

Autoroute : -

Orientation

De la terrasse : sud-ouest

Envoyer à un ami

*Aucune information n'est enregistrée sur ce formulaire

  • Immo A+ Mouscron
Agence

Je veux visiter

Je suis déjà propriétaire d'un bien
Je reconnais avoir pris connaissance de la  politique de confidentialité et des conditions de respect de la Vie Privée

Vos coups de coeur