Maison 3 chambres avec jardin à HerseauxA vendre

Maison Mouscron herseaux

272 000€

En quelques mots

Maison 3 chambres avec jardin et parking à Herseaux.Prestations- Agencement - Rez-de-chaussée : hall d`entrée, WC séparé avec lave-mains, séjour avec espace cuisine ouvert (hors cuisine) et buanderie- Agencement - Etage : 2 chambres, salle de bains avec douche, baignoire, meuble vasque, WC séparé- Agencement - Combles : 1 chambre avec dressing et coin grenier- Espaces extérieurs : [..]

Maison 3 chambres avec jardin et parking à Herseaux.

Prestations
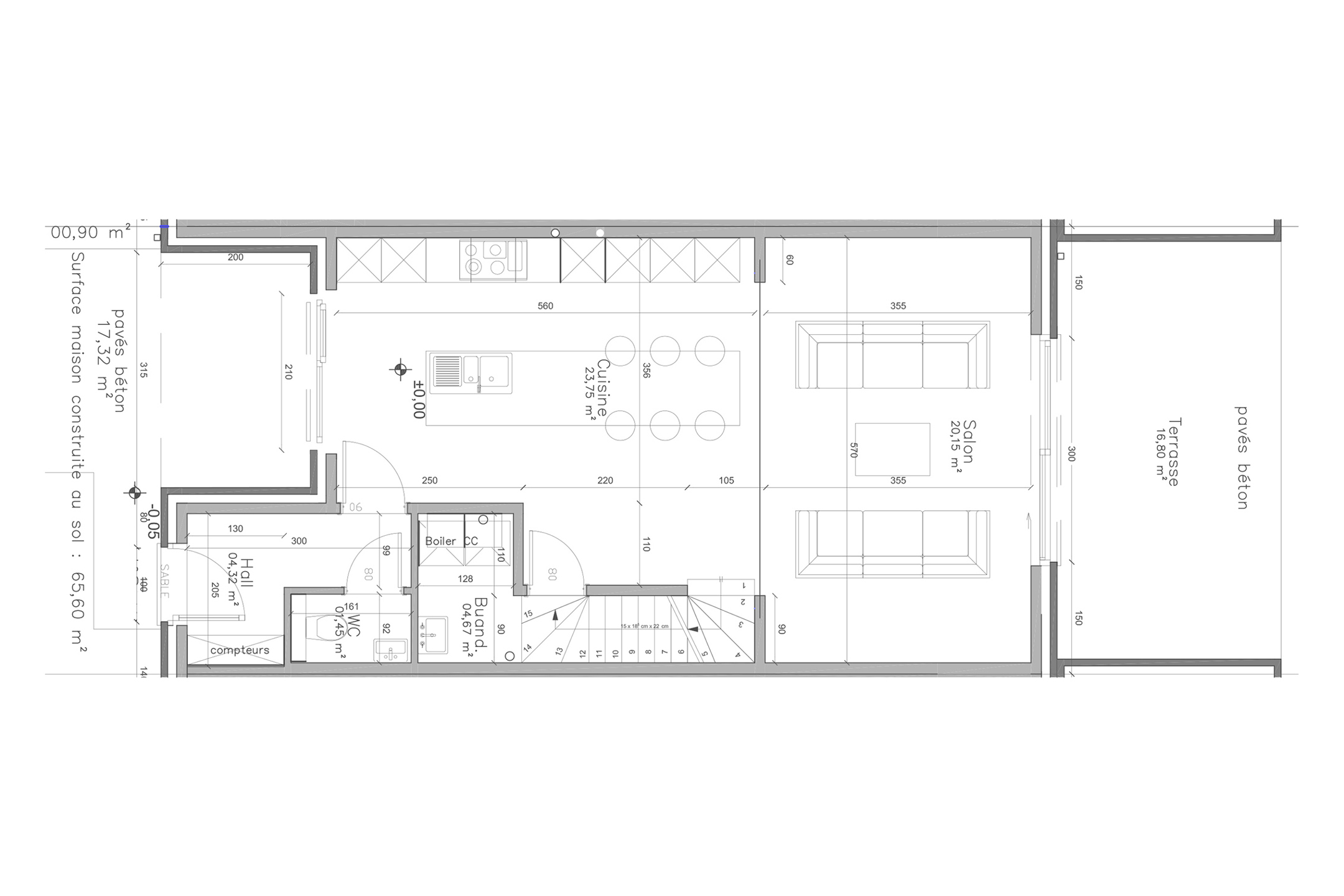
- Agencement - Rez-de-chaussée
: hall d`entrée, WC séparé avec lave-mains, séjour avec espace cuisine ouvert (hors cuisine) et buanderie

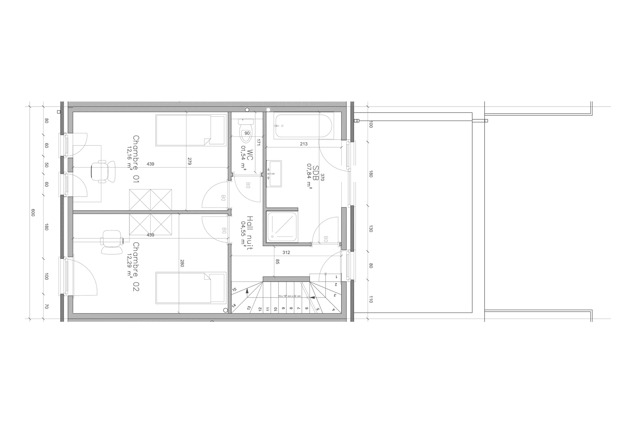
- Agencement - Etage : 2 chambres, salle de bains avec douche, baignoire, meuble vasque, WC séparé
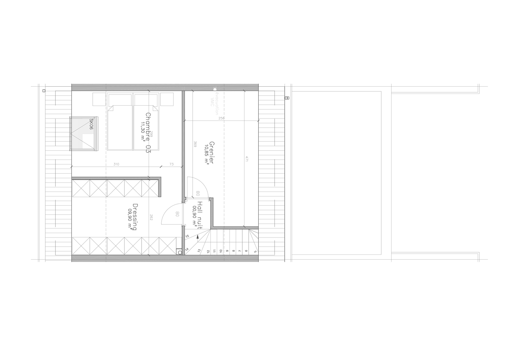
- Agencement - Combles : 1 chambre avec dressing et coin grenier
- Espaces extérieurs : terrasse carrelée et jardin clôturé non engazonné
- Confort et commodités : parking privatif en façade, panneaux solaires

Finitions
- Menuiseries
: châssis PVC double-vitrage, escalier en hêtre

- Chauffage : chauffage central au gaz, chaudière avec boiler séparé, radiateurs avec vannes thermostatiques, thermostat
- Ventilation : VMC double flux
- Revêtements de sol : carrelage dans la pièce de vie et dans la salle de bain, parquet dans les chambres, carrelage anti-graisse pour le garage

Action spéciale : 8.000€ HTVA offert pour l`achat d`une cuisine chez "Vervenne"

PEB visé : A

Livraison : 5 mois après la levée de la condition suspensive


Frais de raccordements compris dans le prix

Prix affichés hors frais - Vente sous régime des droits d`enregistrement (12,5 %) sur le terrain, éligible à 3 % sous conditions, et de la TVA sur la construction (21 %)

Renseignements et visite : Alexandra au +32 472 27 03 42

Retrouvez toutes les informations sur ce projet sur notre site www.immoaplus.be

Les surfaces indiquées ne sont pas des surfaces habitables mais des surfaces brutes, selon le code de mesurage appliqué en Belgique
Publicité à caractère non contractuel et ne constituant pas une offre
Les propriétaires se réservent le droit de décision, d`acceptation ou non sur toute(s) offre(s) soumise(s) pour leur bien

Lire plus

Situation

  • Adresse : Mouscron herseaux

Détails

  • Ref : 7000281
  • Type : Maison/Villa
  • Prix : 272 000€
  • Chambre(s) : 3
  • Etat général : Neuf
  • Salle de bain : 1
  • Garage(s): 0 + 1
  • Cuisine : super-équipée
  • Chauffage : gaz (chau. centr.)

  • Séjour de 20.15m2
  • Cuisine de 23.75m2
  • Habitation de 154m2
  • Terrain de 168m2
  • 2 façades

Energies

  • Conso théorique totale 48900 KwH/an
  • N° cert. 20250129004903
  • Electricité oui, conforme

A proximité

Environnement

,

Commodités

Boutiques : oui

Transport en commun : oui

Ecoles : oui

Salle de Sport : -

Autoroute : oui

Orientation

Du jardin : ouest

De la terrasse : ouest

Envoyer à un ami

*Aucune information n'est enregistrée sur ce formulaire

  • Immo A+ Mouscron
Agence

Je veux visiter

Je suis déjà propriétaire d'un bien
Je reconnais avoir pris connaissance de la  politique de confidentialité et des conditions de respect de la Vie Privée

Vos coups de coeur