Maison 3 chambres avec jardin et garage !A vendre

Maison Dottignies

279 000€

En quelques mots

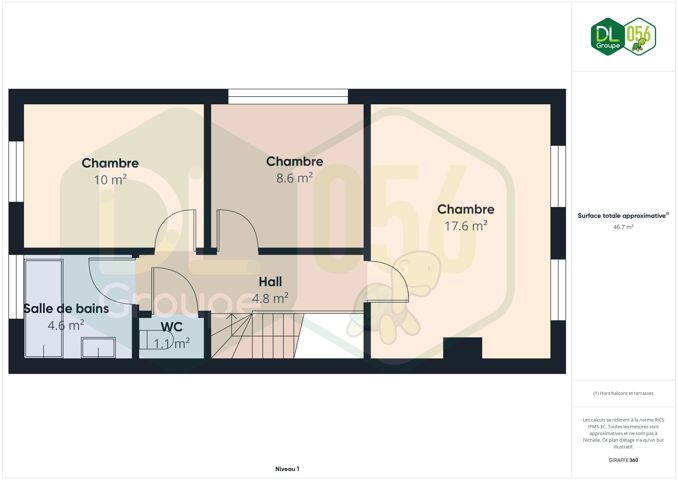
Au REZ: Hall d’entrée avec WC séparé mène vers un vaste salon lumineux habillé de carrelage, avec un escalier apparent. La cuisine équipée communique directement avec le garage.Au 1er étage: Hall de nuit distribue 3 chambres, une salle de bain carrelée avec baignoire-douche et meuble lavabo, un WC séparé ainsi qu’un grenier isolé accessible via escalier escamotable. Les [..]
Au REZ: Hall d’entrée avec WC séparé mène vers un vaste salon lumineux habillé de carrelage, avec un escalier apparent. La cuisine équipée communique directement avec le garage.

Au 1er étage: Hall de nuit distribue 3 chambres, une salle de bain carrelée avec baignoire-douche et meuble lavabo, un WC séparé ainsi qu’un grenier isolé accessible via escalier escamotable. Les chambres et le hall sont en parquet.

Extérieur: Une terrasse carrelée avec un grand jardin clôturé, avec peu de vis-à-vis, une place de parking privative face à la maison et garage privé.

Caractéristiques:
Jolie maison bien entretenue dans un clos résidentiel sécurisé, Confort assuré grâce au chauffage central au gaz et aux châssis bois double vitrage. Carrelage au rez-de-chaussée et parquet dans les chambres.
Lire plus

Situation

  • Adresse : Dottignies

Détails

  • Ref : 7190640
  • Type : Maison/Villa
  • Prix : 279 000€
  • Chambre(s) : 3
  • Etat général : Bon état
  • Salle de bain : 1
  • Garage(s): + 1
  • Cuisine : équipée
  • Chauffage : gaz (chau. centr.)

  • Séjour de 44m2
  • Habitation de 120m2
  • Jardin de 140m2
  • 2 façades

Energies

  • Conso Spécifique 183 KwH/m².an
  • Conso théorique totale 27186 KwH/an
  • N° cert. 20250716007653
  • Electricité non

A proximité

Environnement

calme, résidentiel

Commodités

Boutiques : oui

Transport en commun : oui

Ecoles : oui

Salle de Sport : -

Autoroute : -

Orientation

Du bâtiment : nord-est

Du jardin : nord est

De la terrasse : nord-est

Envoyer à un ami

*Aucune information n'est enregistrée sur ce formulaire

  • DL Groupe - Mouscron 056
  • +32 56 34 00 04
  • Rue de Menin, 400 - 7700 Mouscron
Agence mouscron

Je veux visiter

Je suis déjà propriétaire d'un bien
Je reconnais avoir pris connaissance de la  politique de confidentialité et des conditions de respect de la Vie Privée

Vos coups de coeur