











Charmante maison de maître située dans la ville historique de Menin, où le charme de l’ancien se marie harmonieusement avec le confort moderne.
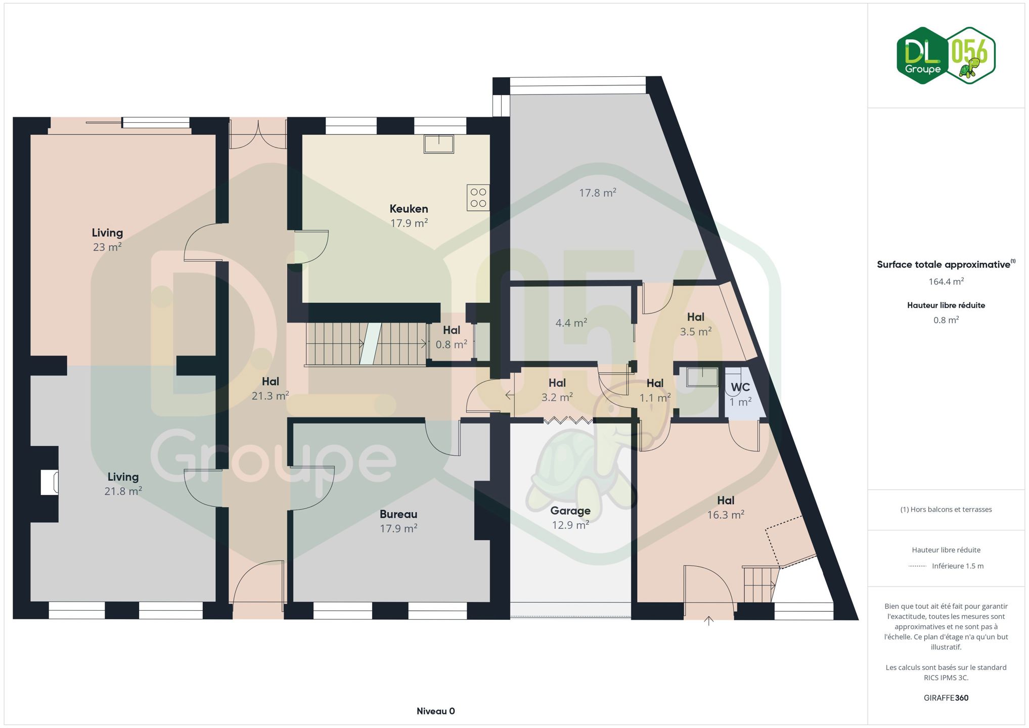
Au rez-de-chaussée, vous êtes accueilli dans un hall d’entrée spacieux qui donne accès à un bureau. Sur la gauche se trouve une salle à manger conviviale avec un grand espace de vie offrant une vue sur le jardin. Sur la droite, vous trouverez une cuisine entièrement équipée.
La maison dispose en outre d’une seconde entrée menant à un espace professionnel.
Au premier étage, le palier dessert trois grandes chambres, dont une avec un dressing sur mesure offrant un espace de rangement optimal. Vous y trouverez également une salle de bain élégante, équipée d’une baignoire, d’une douche, d’un WC et d’un double lavabo. Une pièce polyvalente, pouvant être séparée des chambres, complète ce niveau.
Au deuxième étage se trouve une chambre mansardée, idéale comme salle de jeux ou chambre(s) supplémentaire(s).
À l’extérieur, vous profitez d’une grande terrasse ensoleillée et d’un magnifique jardin clôturé. L’accès à la propriété se fait via un portail automatique et un emplacement de parking est prévu pour un véhicule.
Cette maison convient parfaitement comme habitation kangourou ou pour l’exercice d’une profession libérale.
central, centre ville
Boutiques : oui
Transport en commun : oui
Ecoles : oui
Salle de Sport : -
Autoroute : oui
Du jardin : ouest
De la terrasse : sud