Terrain de 63a 70ca dans un secteur prisé.Projet accepté pour une maison de +/- 230 m² avec 3 chambres + bureauProfondeur terrain : +/- 250 mLargeur du terrain : 16m (en façade) jusqu`à 22m en zone d`habitat et jusqu`à 40m en zone agricole.Terrain affecté en partie en zone d`habitat ( +/- 140m de profondeur) et en partie en zone agricole. LIBRE D`OCCUPATIONTOP SECTEUR ! Publicité à [..]
Terrain de 63a 70ca dans un secteur prisé.
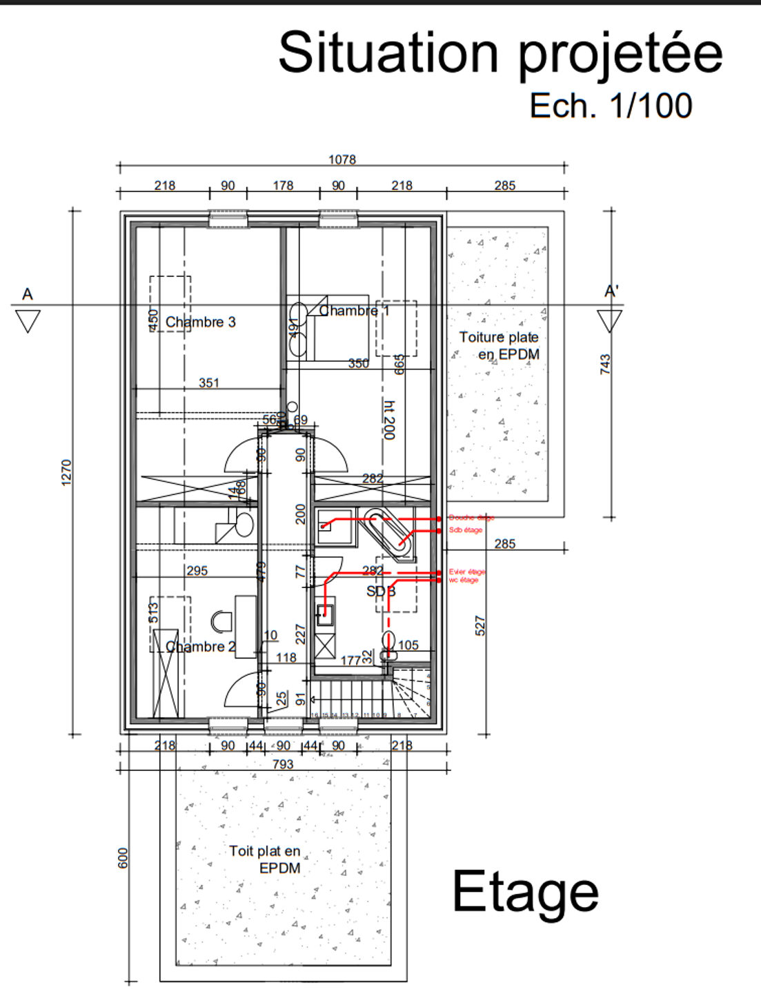
Projet accepté pour une maison de +/- 230 m² avec 3 chambres + bureau
Profondeur terrain : +/- 250 m
Largeur du terrain : 16m (en façade) jusqu`à 22m en zone d`habitat et jusqu`à 40m en zone agricole.
Terrain affecté en partie en zone d`habitat ( +/- 140m de profondeur) et en partie en zone agricole.
LIBRE D`OCCUPATION
TOP SECTEUR !
Publicité à caractère non contractuel et ne constituant pas une offre.
Les propriétaires se réservent le droit de décision, d`acceptation ou non sur toute(s) offre(s) soumise(s) pour leur bien.
Lire plus