Duplex 2 chambres au cœur de la Résidence 7ème ArtA vendre

Duplex Tournai

316 500€

En quelques mots

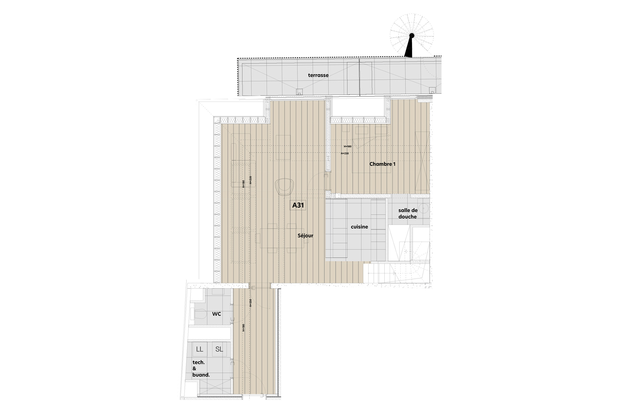
Duplex 2 chambres au coeur de la Résidence 7ème Art, à deux pas de la Cathédrale de Tournai.Prestations- Agencement : hall d’entrée, buanderie, WC séparé avec lave-mains, séjour avec cuisine ouverte, cellier, 1 chambre avec salle de douche privative avec douche et meuble simple vasque.À l’étage, hall de nuit, salle de bouche avec meuble simple vasque, 1 chambre- Espace [..]
Duplex 2 chambres au coeur de la Résidence 7ème Art, à deux pas de la Cathédrale de Tournai.

Prestations
- Agencement :
hall d’entrée, buanderie, WC séparé avec lave-mains, séjour avec cuisine ouverte, cellier, 1 chambre avec salle de douche privative avec douche et meuble simple vasque.
À l’étage, hall de nuit, salle de bouche avec meuble simple vasque, 1 chambre
- Espace extérieur : 1 terrasse
- Confort et commodités : panneaux solaires, trois ascenseurs
- Espaces verts : patio central avec une piscine naturelle

Finitions
- Menuiseries
: porte anti-effractions et coupe-feu, châssis en aluminium thermo laqué à coupure thermique double vitrage
- Chauffage : chauffage au gaz par le sol
- Ventilation : ventilation individuel C++ avec extraction d`air
- Revêtements de sol : carrelage avec plinthes assorties dans la cuisine,la buanderie et la salle de bain/douche et parquet semi massif dans le reste de l’appartement
- Sécurité : système de vidéo-parlophonie, accès parking sécurisé

PEB visé : A

Livraison à l`acte

Prix affichés hors frais - Vente sous régime de la TVA sur la construction (21 %)

Renseignements et visite : Alexandra au +32 472 27 03 42

Retrouvez toutes les informations sur ce projet sur notre site www.immoaplus.be

Les surfaces indiquées ne sont pas des surfaces habitables mais des surfaces brutes, selon le code de mesurage appliqué en Belgique.
Publicité à caractère non contractuel et ne constituant pas une offre.

Les propriétaires se réservent le droit de décision, d`acceptation ou non sur toute(s) offre(s) soumise(s) pour leur bien.
Lire plus

Situation

  • Adresse : Tournai

En Vidéo

Détails

  • Ref : 7203141
  • Type : Appartement
  • Prix : 316 500€
  • Chambre(s) : 2
  • Salle de bain : 2
  • Garage(s): 0 + 1
  • Cuisine : équipée
  • Chauffage : chauffage au sol

  • 1 piscine
  • Habitation de 93.1m2

Energies

  • Conso théorique totale 1624 KwH/an
  • N° cert. 20250723501042
  • Electricité oui, non conforme

A proximité

Environnement

,

Commodités

Boutiques : oui

Transport en commun : oui

Ecoles : oui

Salle de Sport : oui

Autoroute : -

Orientation

Envoyer à un ami

*Aucune information n'est enregistrée sur ce formulaire

  • Immo A+ Mouscron
Agence

Je veux visiter

Je suis déjà propriétaire d'un bien
Je reconnais avoir pris connaissance de la  politique de confidentialité et des conditions de respect de la Vie Privée

Vos coups de coeur