Charmante maison au cœur de la ville avec jardin et garageA vendre

Maison Tournai

495 000€

En quelques mots

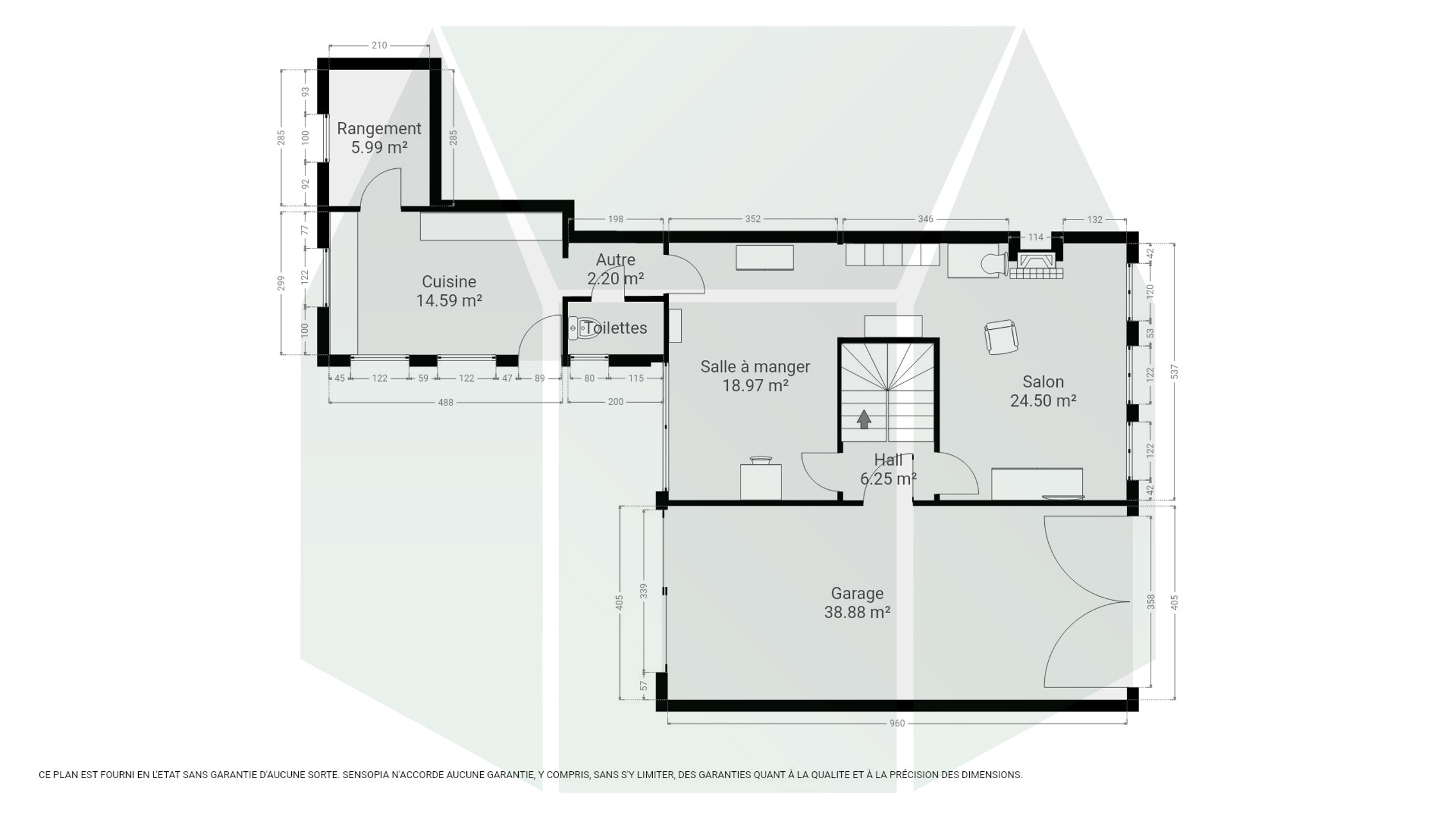
Une vaste entrée traversante et pavée peut accueillir un véhicule, et donne accès au hall d’entrée. Le rez se compose d’un salon avec parquet ancien et cheminée et de nombreux rangements, d’une salle à manger avec accès au jardin, et d’une cuisine équipée avec arrière cuisine servant de cellier/buanderie. 1er étage : Hall de nuit desservant 4 chambres dont une avec double [..]

Une vaste entrée traversante et pavée peut accueillir un véhicule, et donne accès au hall d’entrée. Le rez se compose d’un salon avec parquet ancien et cheminée et de nombreux rangements, d’une salle à manger avec accès au jardin, et d’une cuisine équipée avec arrière cuisine servant de cellier/buanderie.

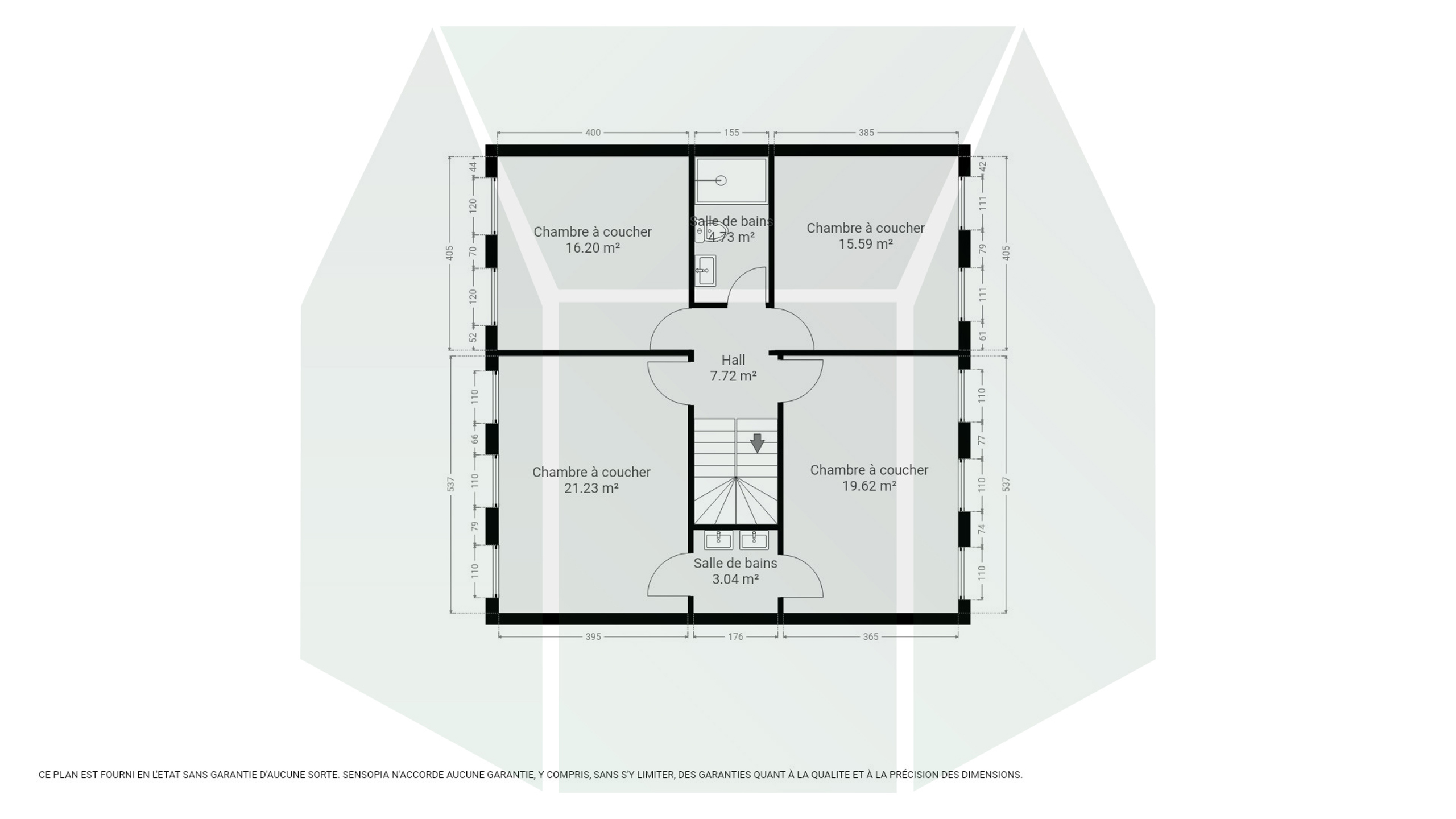
1er étage : Hall de nuit desservant 4 chambres dont une avec double vasque, ainsi qu’une salle de douche avec évier et toilette.

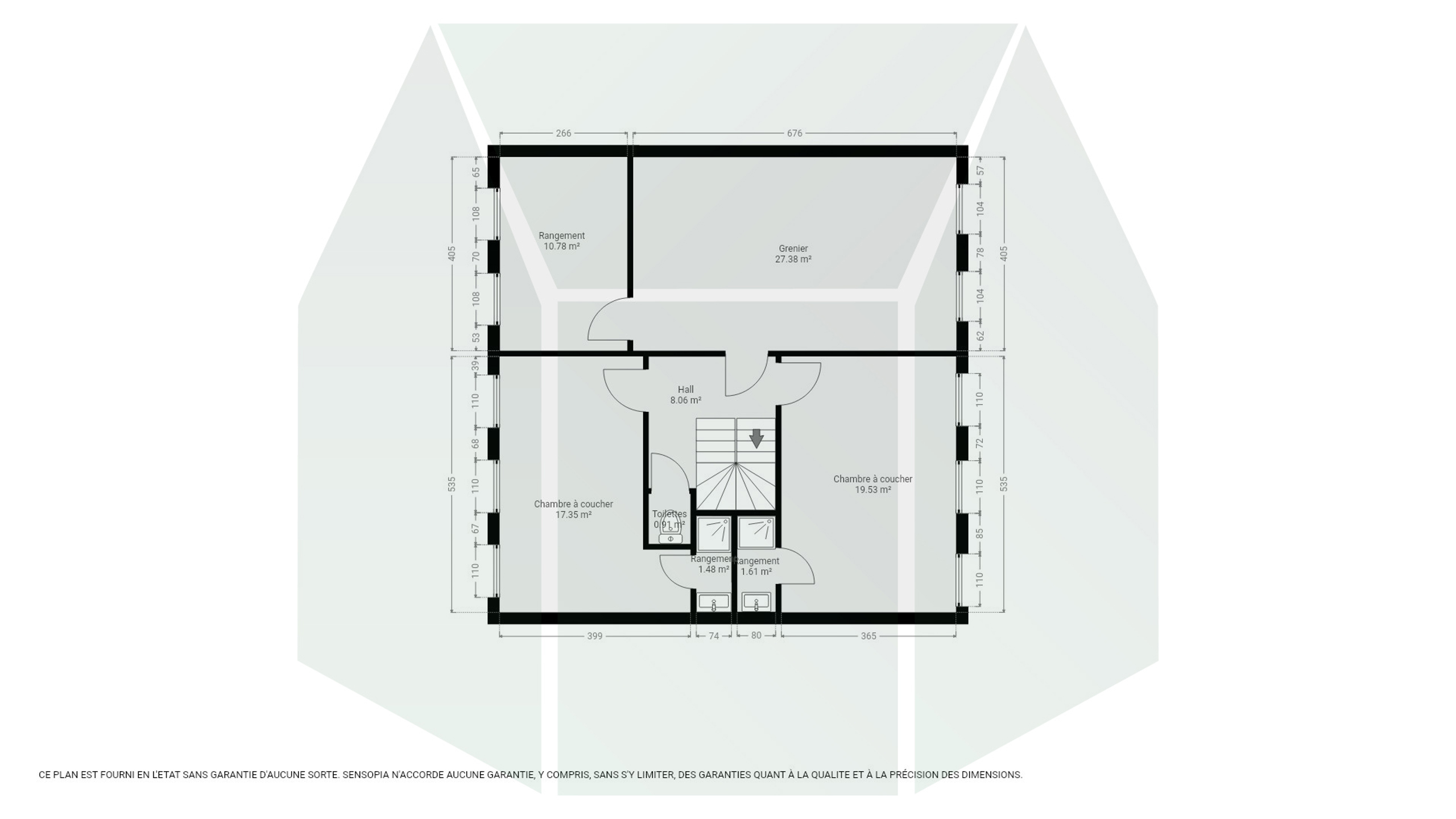
2ème étage : Hall de nuit, toilette séparée, une chambre avec évier et douche, un chambre avec évier, douche et kitchenette, et un espace grenier aménageable avec mezzanine et second grenier aménageable.

Cave à vin en pierre bleue, saine et fraiche.

Extérieurs : Vaste jardin arboré et muré avec abri de stockage.

Caractéristiques : Chauffage central au gaz, chaudière à condensation Buderus, châssis en bois (simple et double vitrage), citerne d’eau de pluie 8000 litres (alimente wc, robinet extérieur et machines), compteur bihoraire.

> Prix : 495.000€

Publicité à caractère non contractuel et ne constituant pas une offre.
Les propriétaires se réservent le droit de décision, d`acceptation ou non sur toute(s) offre(s) soumise(s) pour leur bien.

Lire plus

Situation

  • Adresse : Tournai

Détails

  • Ref : 7079138
  • Type : Maison/Villa
  • Prix : 495 000€
  • Chambre(s) : 6
  • Etat général : Excellent état
  • Salle de bain : 4
  • Garage(s): 1 + 1
  • Cuisine : équipée
  • RC : 1455€
  • Chauffage : gaz (chau. centr.)

  • 1 bureau
  • Habitation de 287.11m2
  • Terrain de 657m2
  • Jardin de 657m2
  • 2 façades

Energies

  • Conso Spécifique 218 KwH/m².an
  • Conso théorique totale 80249 KwH/an
  • N° cert. 20221102007680
  • Electricité oui, non conforme
  • Cert. Elec du 04/04/2025

A proximité

Environnement

central,

Commodités

Boutiques : -

Transport en commun : -

Ecoles : -

Salle de Sport : -

Autoroute : -

Orientation

Du jardin : nord ouest

Envoyer à un ami

*Aucune information n'est enregistrée sur ce formulaire

  • Immo Emeraude Tournai
Agence emeraude

Je veux visiter

Je suis déjà propriétaire d'un bien

Vos coups de coeur

# Suggestions