











Nous vous invitons à découvrir cet ensemble immobilier de 3000m² habitables situé au milieu d’un terrain d"1,5 hectare totalement emmuré.
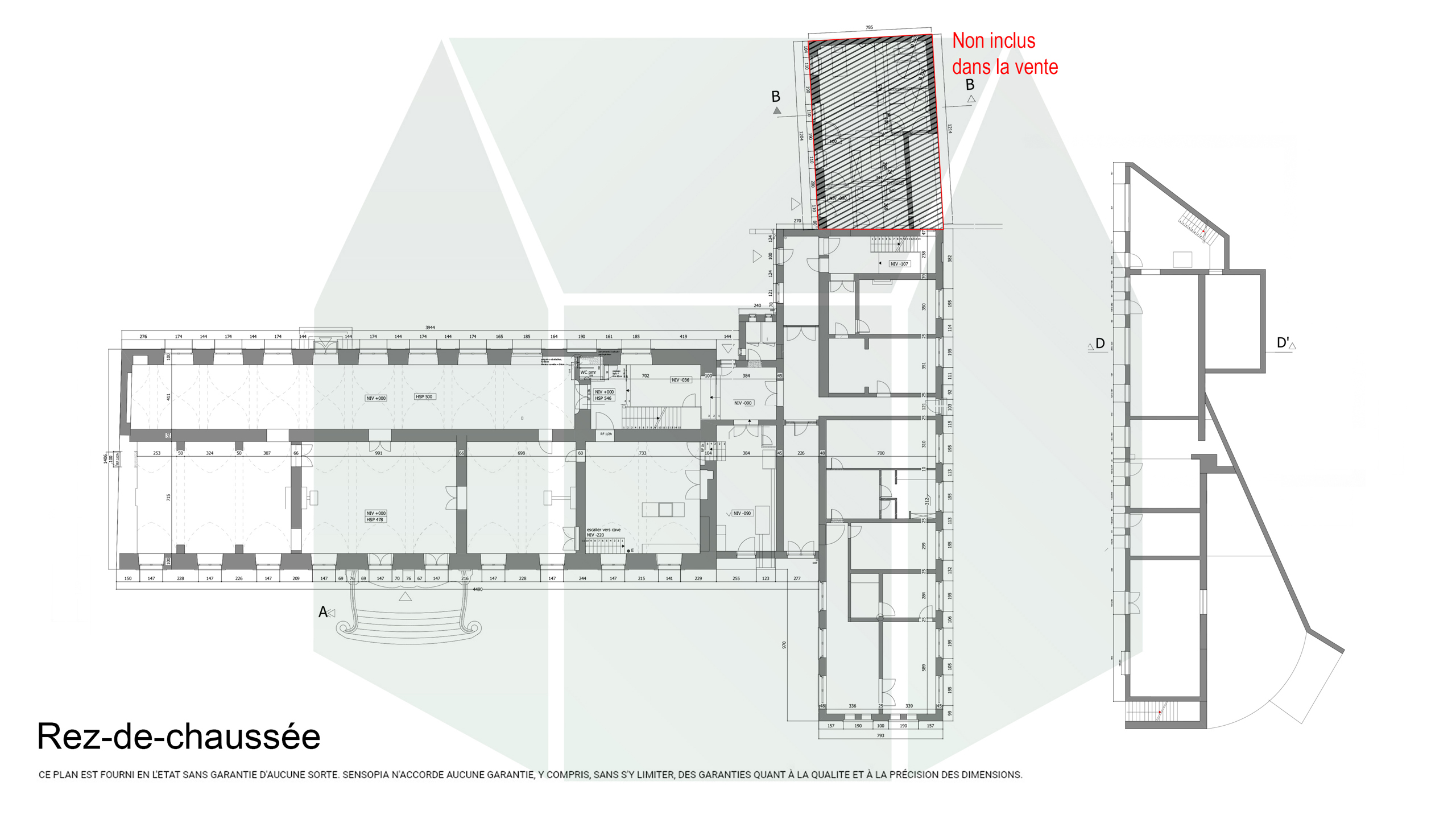
La propriété se compose de 2 bâtiments, un bâtiment principal en forme de "T" et un autre utilisé comme espace de stockage.
Le bâtiment principal se compose deux ailes :
Petite aile :
- Un appartement au rez de chaussée (salon/séjour avec cuisine ouverte, 3 chambres, salle de bain)
- Un appartement au 1er étage (hall, bureau, buanderie, salon/séjour avec cuisine, 5 chambres)
- Une ancienne chapelle
Grande aile :
- Rez de chaussée : vaste hall vouté, 4 grandes salles dont une cuisine avec accès aux caves.
- 1er étage : 12 chambres avec point d`eau, une salle commune avec cuisine.
- 2ème étage : 11 chambres avec point d`eau, une salle commune avec cuisine.
La propriété se situe à +/- 2 km de la gare de Tournai et de son centre-ville.
Le parc, d’une rare biodiversité est parsemé d’arbres exceptionnels.
Le site présente de nombreux avantages qui offrent une multitude de possibilités en terme d’exploitation :
Résidentiel, appartements, co-housing, habitats groupés, salle de séminaire, restaurant, hébergement touristique, projet d’agriculture biologique...
Caractéristiques : châssis simple et double vitrage, chaudière aux pellets ÖkoFEN, citerne d`eau de pluie.
> Prix : 1.350.000€
Publicité à caractère non contractuel et ne constituant pas une offre.
Les propriétaires se réservent le droit de décision, d`acceptation ou non sur toute(s) offre(s) soumise(s) pour leur bien.
Vue dégagée,
Boutiques : -
Transport en commun : -
Ecoles : -
Salle de Sport : -
Autoroute : -