











Découvrez cette somptueuse maison de maître, véritable témoin du passé, idéalement située au cœur de la charmante ville d’Antoing.
Érigée à l’origine en 1520, à deux pas du prestigieux château d’Antoing, cette demeure historique a bénéficié d’une rénovation élégante au XIXe siècle, conservant avec soin ses éléments d’époque tout en s’adaptant aux exigences du confort moderne.
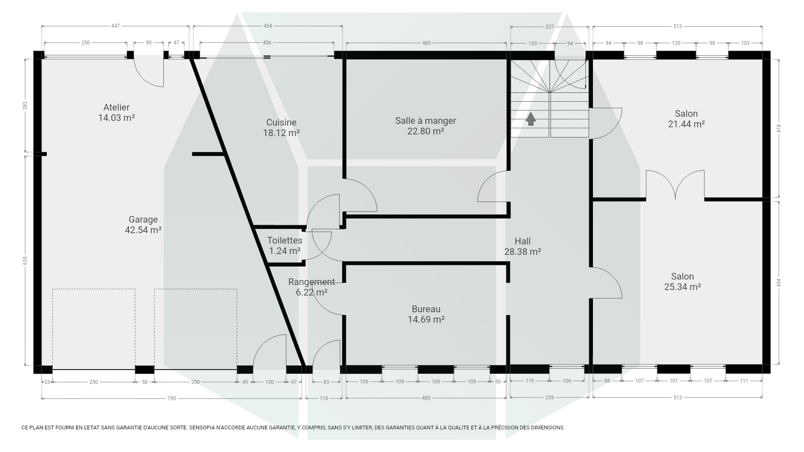
Le rez-de-chaussée s’ouvre sur un majestueux hall d’entrée qui dessert les pièces principales : deux salons raffinés ornés de magnifiques planchers anciens, une salle à manger élégante, chacun agrémenté d`une cheminée en marbre authentique. La cuisine équipée, fonctionnelle et lumineuse, donne un accès direct à la terrasse. Vous trouverez également une buanderie pratique ainsi qu’un bureau, idéal pour le télétravail.
À l’étage, la maison dispose de quatre belles chambres et de deux salles de douche avec toilettes. L’escalier en chêne massif, d’une rare qualité, mène à un vaste grenier de 120 m² équipé de tomettes au sol, entièrement aménageable et offrant de multiples possibilités.
Le sous-sol abrite plusieurs caves, dont une cave à vin voûtée, idéale pour les amateurs. Un double garage complète l’ensemble, avec un espace de stockage supplémentaire et un étage à aménager selon vos besoins.
Extérieur : Jardin clos et fleuri, possédant une dépendance (rangement) et un accès facile par le chemin sur le côté.
Caractéristiques :
central,
Boutiques : -
Transport en commun : -
Ecoles : -
Salle de Sport : -
Autoroute : -