Spacieuse demeure au cœur de Mouscron : 500m² habitables, 7 chambres, 2 garages !A vendre

Maison Mouscron

550 000€

En quelques mots

Spacieuse demeure au cœur de Mouscron : 500m² habitables, maison 4 chambres + appartement 3 chambres Au REZ : Un vaste hall d’entrée avec escalier apparent et espace vestiaire, un WC séparé avec lave-mains, un immense séjour développant 100m, une grande cuisine équipée attenante, un bureau offrant une agréable vue sur l’extérieur. Un second hall avec ascenseur menant à tous [..]

Spacieuse demeure au cœur de Mouscron : 500m² habitables, maison 4 chambres + appartement 3 chambres

Au REZ : Un vaste hall d’entrée avec escalier apparent et espace vestiaire, un WC séparé avec lave-mains, un immense séjour développant 100m, une grande cuisine équipée attenante, un bureau offrant une agréable vue sur l’extérieur. Un second hall avec ascenseur menant à tous les étages.

Au 1er étage : Premier hall de nuit desservant 4 chambres à coucher de 23m², 21m², 15m² et 14m² (dont une suite parentale) avec une première salle de bains composée d’une baignoire/douche, d’un meuble lavabo double vasque, et un dressing. Une seconde salle de bains composée d’une baignoire, d’une douche, d’un meuble lavabo double vasque et d’un WC. Le second hall dessert l’appartement avec une cuisine équipée ainsi qu’un lumineux séjour de +/- 30m² avec l’avantage d’avoir une grande terrasse surplombant le jardin.

Au 2ème étage : Vaste hall menant aux 3 chambres de l’appartement de 19m², 18m² et 12m², une salle de bains composée d’une baignoire/douche, d’un meuble lavabo et d’un WC séparé. De plus, l’autre aile dessert un grand espace grenier offrant +/- 105m² habitable offrant de nombreuses possibilités d’aménagement.

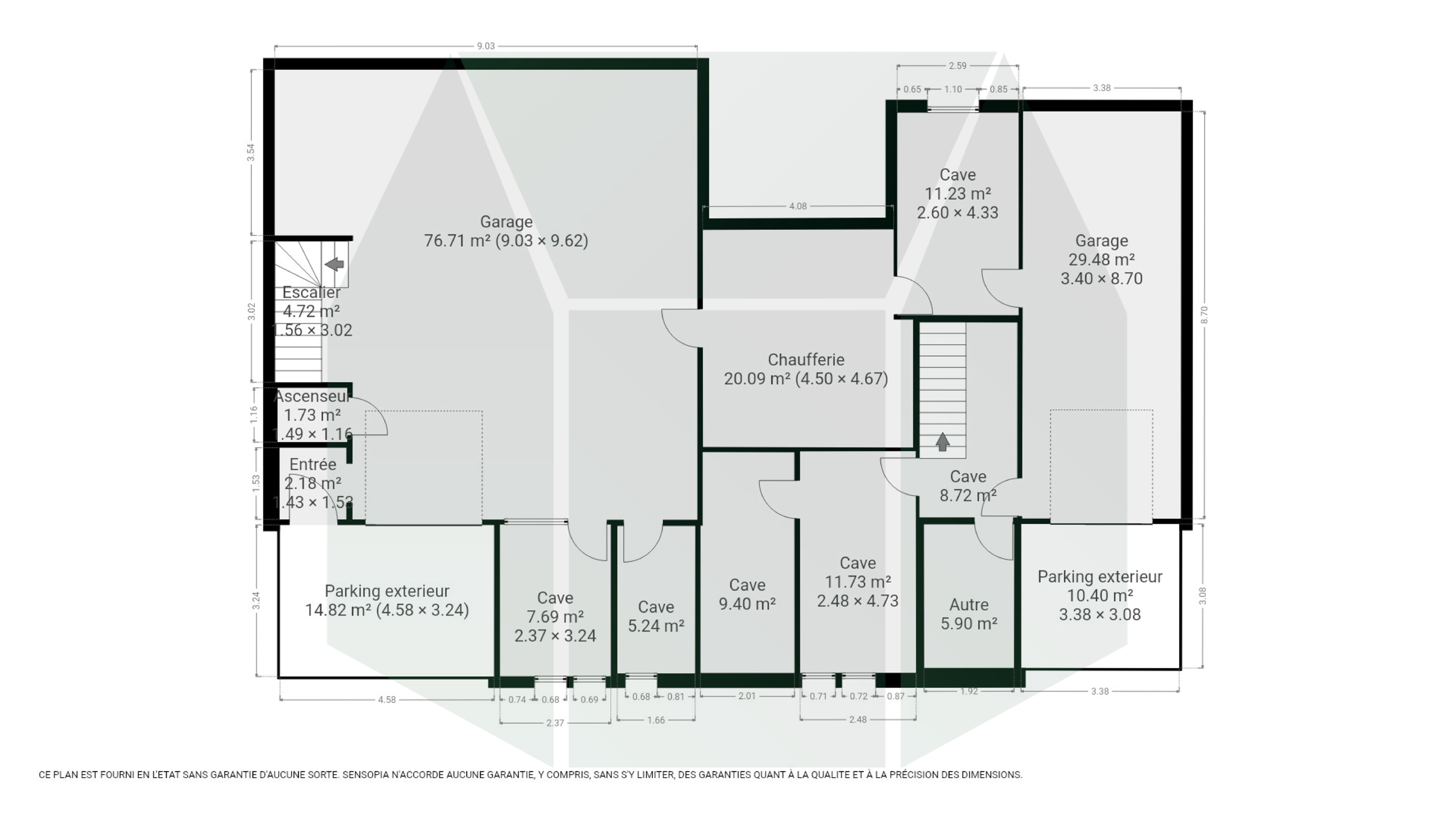
Au sous-sol : Maison entièrement excavée proposant 2 grands garages pouvant accueillir 6 voitures, une chaufferie et des caves.

Extérieur : Une terrasse en bois, un jardin clôturé et arboré exposé « SUD-OUEST » soit la perfection, 2 places de parking privatives face aux garages.

POSSIBILITÉ DE SCINDER LA MAISON EN 2 HABITATIONS DISTINCTES.

Caractéristiques :
Immense maison des années 1960-1970 avec de beaux volumes en plein centre-ville de Mouscron, à quelques pas de la Grand-Place, chauffage central au mazout, feu à bois, châssis en bois double vitrage avec persiennes, front à rue de 20m, ascenseur menant à chaque étage, 500m² habitable !

Publicité à caractère non contractuel et ne constituant pas une offre.
Les propriétaires se réservent le droit de décision, d`acceptation ou non sur toute(s) offre(s) soumise(s) pour leur bien.

Lire plus

Situation

  • Adresse : Mouscron

Détails

  • Ref : 7011025
  • Type : Maison/Villa
  • Prix : 550 000€
  • Chambre(s) : 9
  • Etat général : À rafraîchir
  • Salle de bain : 2
  • Garage(s): 1 + 1
  • Cuisine : équipée
  • Chauffage : Chauffage mural

  • Séjour de 31m2
  • Cuisine de 25m2
  • Habitation de 493m2
  • Terrain de 773m2
  • Jardin de 500m2
  • 2 façades

Energies

  • Conso Spécifique 305 KwH/m².an
  • Conso théorique totale 182466 KwH/an
  • N° cert. 20240312003672
  • Electricité oui, non conforme

A proximité

Environnement

centre ville,

Commodités

Boutiques : -

Transport en commun : -

Ecoles : -

Salle de Sport : -

Autoroute : -

Orientation

Envoyer à un ami

*Aucune information n'est enregistrée sur ce formulaire

  • Immo Emeraude Mouscron
Agence emeraude

Je veux visiter

Je suis déjà propriétaire d'un bien
Je reconnais avoir pris connaissance de la  politique de confidentialité et des conditions de respect de la Vie Privée

Vos coups de coeur

# Suggestions

  • ... Nouveauté

    Neufchâtel-hardelot