











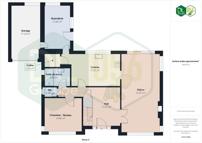
Au rez-de-chaussée, vous découvrirez un vaste hall d’entrée avec un escalier apparent, un lumineux séjour traversant comprenant salon et salle à manger, ainsi qu’une cuisine équipée attenante (plaque gaz, hotte télescopique, four, double évier, lave-vaisselle, coin repas, nombreux rangements). S’y ajoutent un cellier, une buanderie, un garage pour une voiture, ainsi qu’une chambre à coucher. Vous profiterez également d’une salle de bains rénovée avec douche à l’italienne, meuble lavabo, et d’un WC suspendu séparé avec lave-mains. Une cave saine complète ce niveau.
Au 1er étage, le hall de nuit dessert une suite parentale avec grande chambre, salle de bains (baignoire, meuble lavabo, WC suspendu) et espace dressing. Trois chambres supplémentaires offrent de belles possibilités.
Au 2ème étage, un grenier accessible par trappe complète l’ensemble.
À l`extérieur, vous apprécierez la spacieuse terrasse carrelée et couverte, le jardin clôturé exposé sud-est, un abri de jardin en bois, un passage latéral, ainsi que des places de parking privatives et un carport.
Caractéristiques : Agréable villa située dans un quartier calme, proche de toutes commodités (écoles, commerces, transports, axes routiers). Équipements : chauffage central au gaz (chaudière Vaillant récente), boiler relié à la chaudière, insert bois au séjour, châssis bois double vitrage avec persiennes motorisées et manuelles, adoucisseur d’eau, citerne d’eau de pluie avec groupe hydrophore, 12 panneaux photovoltaïques, porte de garage sectionnelle motorisée.
Publicité à caractère non contractuel et ne constituant pas une offre.
Les propriétaires se réservent le droit de décision, d`acceptation ou non sur toute(s) offre(s) soumise(s) pour leur bien.
calme, campagne
Boutiques : oui
Transport en commun : oui
Ecoles : oui
Salle de Sport : -
Autoroute : oui
Du bâtiment : sud-est
Du jardin : sud est
De la terrasse : sud-est