











Superbe maison de maître avec des volumes impressionnants idéalement située en plein centre de Mouscron avec 2 garages et carport !
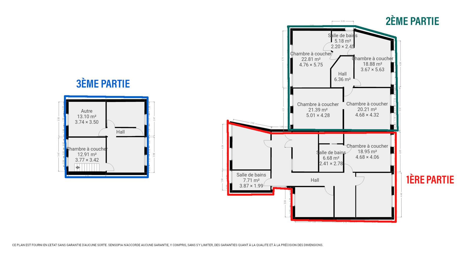
Le bien est composé en 3 parties :
1ÈRE PARTIE (HABITATION PRINCIPALE) : Hall d’entrée desservant une pièce polyvalente (chambre, bureau ou profession libérale), un bureau de 10m² avec des rangements sur-mesure, un WC séparé, une second hall d’entrée avec un magnifique escalier apparent, nouvelle extension habitable très lumineuse par ses grandes fenêtres développant +/- 68m² (salon et salle à manger), une cuisine équipée communicant directement avec le séjour (plaque de cuisson, hotte télescopique, four, lave-vaisselle, frigo, congélateur, coin repas et nombreux rangements intégrés).
Au 1er étage nous retrouvons une suite parentale avec une salle de bains entièrement faïencée composée d’une douche, d’un meuble lavabo double vasque et d’un WC suspendu, un dressing. Le hall de nuit dessert également 4 belles chambres de 16m², 16m², 12m² et 10m² ainsi qu’une seconde salle de bains composée d’une baignoire, d’une douche, d’un meuble lavabo double vasque et d’un WC.
Au 2ème étage se trouve le grenier isolé par le sol avec la possibilité d’aménager, accessible par un escalier escamotable situé sur le hall de nuit.
Au sous-sol : Belle cave saine avec un espace buanderie.
Extérieur : Sublime extérieur en plein centre-ville avec une terrasse carrelée, un jardin arboré et clôturé exposé « SUD-OUEST » soit la perfection, 1 place de parking privative sécurisée par un portail motorisé. SUPERFICIE HABITABLE DE 265M²
2ÈME PARTIE : Ancienne maison de commerce qui fut exploité en droguerie, maintenant considéré comme annexe (SUPERFICIE DE 155M²)
3ÈME PARTIE : A l’arrière de la maison nous retrouvons deux grands garages de 26m² et 24m² avec des portes sectionnelles motorisées. (avantage d’avoir des entrées séparées via l`arrière par rapport à l’habitation principale).
Caractéristiques :
Maison de maître érigée sur 867m² en plein centre-ville de Mouscron. Le bien est dans un excellent état d’entretien, proche de toutes commodités (écoles, transports en communs, commerces, gare, …), chauffage central au gaz avec chaudière de la marque « BUDERUS », châssis en bois et aluminium double vitrage + stores télécommandés, somptueux parquet dans le séjour et les chambres, système d’alarme. ENORME POTENTIEL (nombreuses possibilités d’aménagement), IDEAL PROFESSION LIBERALE ! RARE A LA VENTE !!! SUPERFICIE HABITABLE TOTALE DE 490M²
central, central
Boutiques : oui
Transport en commun : oui
Ecoles : oui
Salle de Sport : -
Autoroute : oui
Du bâtiment : sud-ouest
Du jardin : sud ouest
De la terrasse : sud-ouest