











Appartement 3 chambres situé dans la Résidence Les Terrasses de Bozière, nouveau quartier idéalement situé à Tournai, à deux pas de la gare et du centre-ville
Vivez dans un environnement dynamique et verdoyant, où l`équilibre parfait entre vie urbaine et sérénité résidentielle prend tout son sens
Profitez d’une situation idéale, à seulement quelques minutes de la gare, du centre-ville et du centre commercial Les Bastions, avec un accès rapide aux commerces, écoles et transports en commun
Prestations
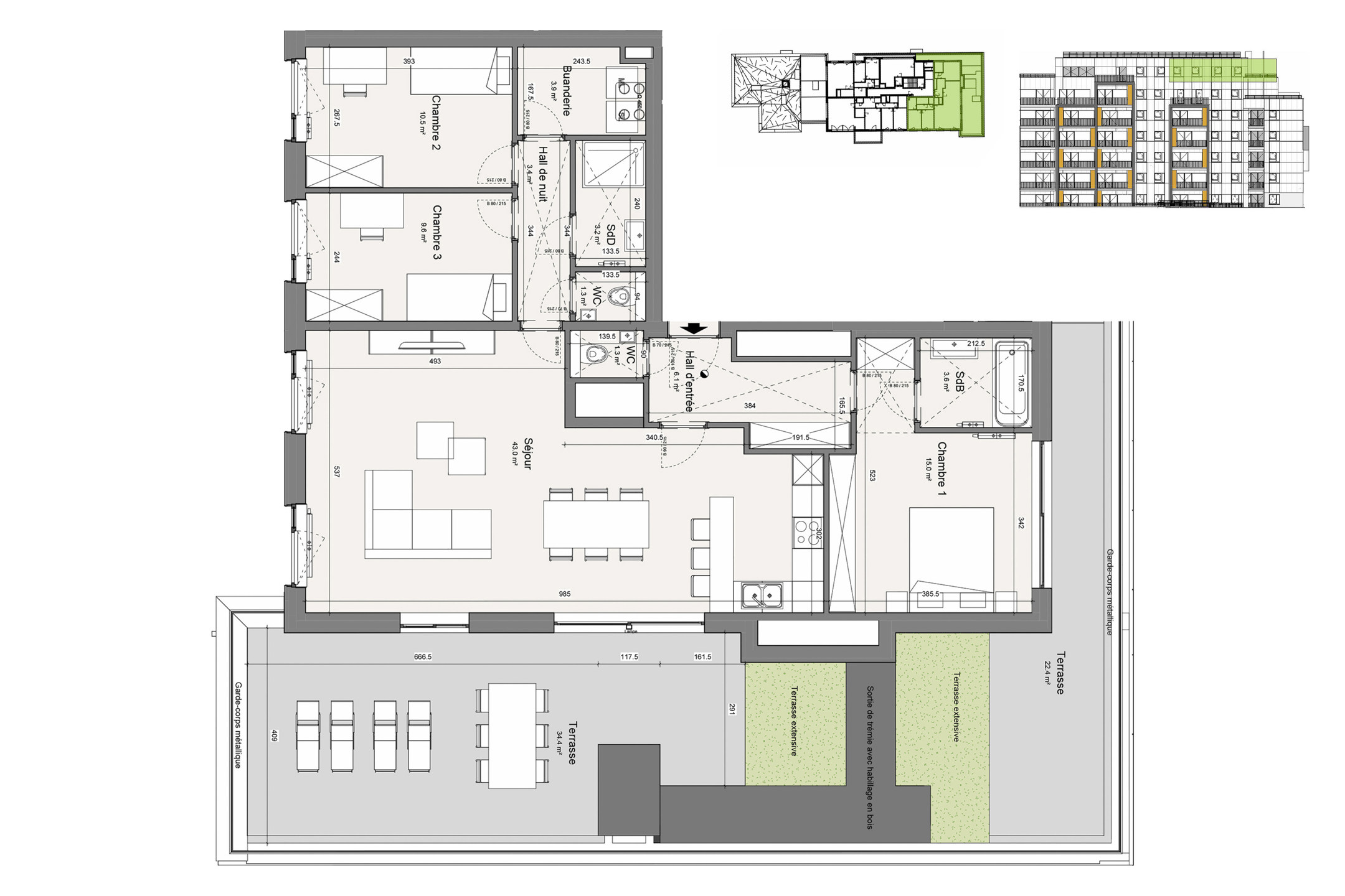
- Agencement : hall d’entrée avec wc séparé avec lave-mains, buanderie, séjour lumineux avec cuisine ouverte, wc séparé avec lave-mains, salle de bain avec douche, 3 chambres dont une avec salle de bain
- Espaces extérieurs : terrasse
- Confort et commodités : ascenseur
- Espaces verts : îlot végétalisé et verger accessibles aux résidents
Finitions
- Menuiseries : châssis PVC double vitrage à coupure thermique
- Chauffage : système collectif avec chaudière gaz individuelle, radiateurs et thermostat
- Ventilation : double flux avec récupération de chaleur
- Revêtements de sol : carrelage au choix avec plinthes assorties, parquet dans les chambres
- Sécurité : détection incendie et vidéophonie
Obligation d`acquérir 2 places de parking et 1 cave
PEB visé : B
Livraison à définir
Prix affichés hors frais - Vente sous régime des droits d`enregistrement (12,5 %) sur le terrain, éligible à 3 % sous conditions, et de la TVA sur la construction (21 %)
Renseignements et visite : Alexandra au +32 472 27 03 42
Retrouvez toutes les informations sur ce projet sur notre site www.immoaplus.be
Les surfaces indiquées ne sont pas des surfaces habitables mais des surfaces brutes, selon le code de mesurage appliqué en Belgique
Publicité à caractère non contractuel et ne constituant pas une offre
Les propriétaires se réservent le droit de décision, d`acceptation ou non sur toute(s) offre(s) soumise(s) pour leur bien
central,
Boutiques : oui
Transport en commun : oui
Ecoles : oui
Salle de Sport : -
Autoroute : oui
De la terrasse : sud-est