Idéal investisseur : Immeuble mixte en plein centre de Tournai !A vendre

Immeuble mixte Tournai

429 000€

En quelques mots

Opportunité d`investissement : Immeuble de rapport avec rez-de-chaussée commercial et 3 appartements loués !Cet immeuble mixte, idéalement situé en plein cœur de Tournai, représente une excellente opportunité pour les investisseurs cherchant à maximiser leur rendement locatif. Avec un revenu locatif total de 3.045€/mois, cet immeuble combine un espace commercial au rez-de-chaussée [..]

Opportunité d`investissement : Immeuble de rapport avec rez-de-chaussée commercial et 3 appartements loués !

Cet immeuble mixte, idéalement situé en plein cœur de Tournai, représente une excellente opportunité pour les investisseurs cherchant à maximiser leur rendement locatif. Avec un revenu locatif total de 3.045€/mois, cet immeuble combine un espace commercial au rez-de-chaussée et trois appartements résidentiels.

Rez-de-chaussée commercial :

  • Surface de 47,53 m² avec remise de 32,98 m²
  • Chambre froide et WC
  • Espace entièrement excavé, offrant un potentiel d’aménagement supplémentaire
  • Loyer escompté : 1.000€/mois

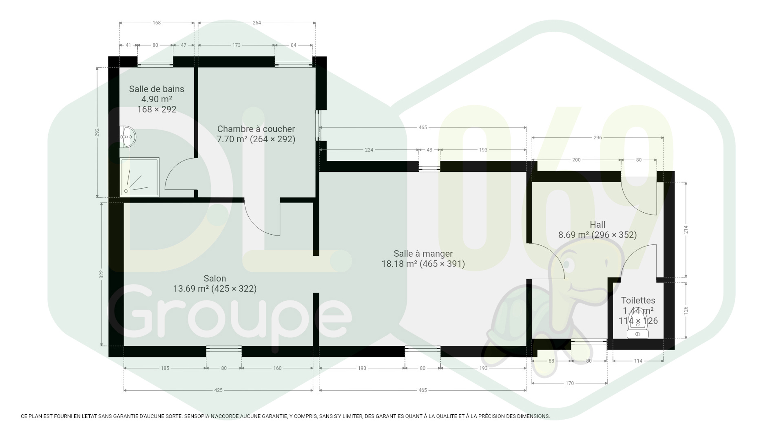
Appartement 1 (85 m²) :

  • Hall d`entrée
  • Séjour avec cuisine équipée
  • Salon/chambre + 2 chambres
  • Salle de bain
  • Loyer actuel : 750€/mois

Appartement 2 (78 m²) :

  • Hall d`entrée
  • Salle de bain
  • Séjour avec cuisine équipée
  • 3 chambres
  • Loyer actuel : 700€/mois

Appartement 3 (59 m²) :

  • Hall d`entrée
  • Séjour avec nombreux espaces de rangement
  • Cuisine semi-équipée (taque électrique, hotte, frigo)
  • Chambre spacieuse avec rangements
  • Salle de douche
  • WC séparé
  • Loyer actuel : 595€/mois
Caractéristiques supplémentaires :
  • Compteurs séparés pour chaque unité
  • Chauffage central gaz individuel dans chaque appartement
  • Châssis double vitrage en PVC et bois
  • Immeuble raccordé au tout-à-l`égout
  • Électricité conforme
  • Rentabilité nette : +/- 4,56%
Publicité à caractère non contractuel et ne constituant pas une offre.
Les propriétaires se réservent le droit de décision, d`acceptation ou non sur toute(s) offre(s) soumise(s) pour leur bien.
Lire plus

Situation

  • Adresse : Tournai

Détails

  • Ref : 6647264
  • Type : Maison/Villa
  • Prix : 429 000€
  • Chambre(s) : 7
  • Etat général : Bon état
  • Salle de bain : 3
  • Cuisine : semi-équipée
  • RC : 4133€
  • Chauffage : gaz (chau. centr.)

  • Séjour de 25m2
  • Habitation de 305m2
  • Terrain de 119m2
  • 2 façades

Energies

  • Conso Spécifique 307 KwH/m².an
  • Conso théorique totale 18019 KwH/an
  • N° cert. 20191106008736
  • Electricité oui, conforme

A proximité

Environnement

central, centre ville

Commodités

Boutiques : oui

Transport en commun : oui

Ecoles : oui

Salle de Sport : oui

Autoroute : oui

Orientation

Envoyer à un ami

*Aucune information n'est enregistrée sur ce formulaire

  • DL Groupe - Tournai 069
  • +32 69 66 56 56
  • Boulevard du Roi Albert 44 - 7500 Tournai
Agence tournai

Je veux visiter

Je suis déjà propriétaire d'un bien
Je reconnais avoir pris connaissance de la  politique de confidentialité et des conditions de respect de la Vie Privée

Vos coups de coeur

# Suggestions