








Appartement situé au 2ème étage de la résidence « Corto Maltese » composé comme suit :
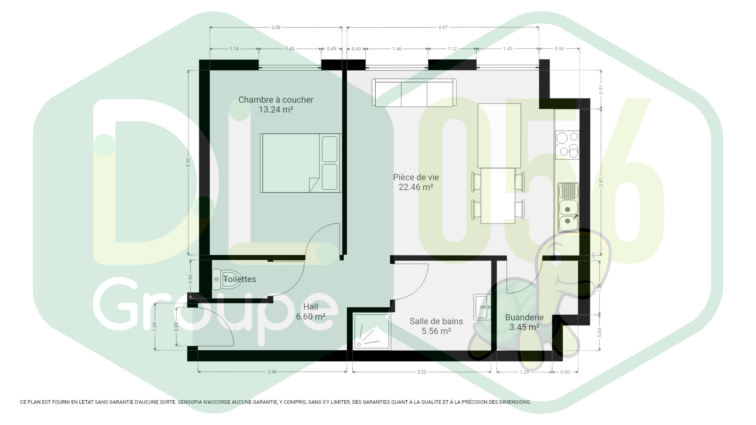
Un hall d’entrée desservant une pièce de vie lumineuse composée d’un séjour (salon et salle à manger) ainsi qu’une cuisine équipée ouverte (plaque de cuisson, hotte télescopique, double évier, ilot central et nombreux rangements). La partie nuit dessert une grande chambre à coucher d e13m2, une salle de bains composée d’une douche, d’un meuble lavabo et d’un sèche-serviette, un WC suspendu séparé avec lave-mains.
De plus l’appartement dispose d’une place de parking privative à l’arrière de la résidence (inclus dans le prix).
Caractéristiques :
Bel appartement idéalement situé dans une rue calme et à proximité du centre-ville, proche de toutes commodités (écoles, transports en communs, commerces, …), chauffage central au gaz avec chaudière à condensation, châssis en PVC double vitrage, ascenseur, système de vidéophonie, parquet dans l’entièreté de l’appartement. Actuellement loué 695€/mois ! IDEAL INVEST !
Publicité à caractère non contractuel et ne constituant pas une offre.
Les propriétaires se réservent le droit de décision, d`acceptation ou non sur toute(s) offre(s) soumise(s) pour leur bien.
central, centre ville
Boutiques : oui
Transport en commun : oui
Ecoles : oui
Salle de Sport : -
Autoroute : oui