Appartement met 2 slaapkamers in MoeskroenTe koop

Appartement Moeskroen

263 221€

In een paar woorden

Lees verder

Ligging

  • Adres : Moeskroen

Op video

Kenmerken

  • Ref : 5452446
  • Soort : Appartement
  • Prijs : 263 221€
  • Kamer(s) : 2
  • Voorwaarde : Nieuw
  • Badkamer : 1
  • Keuken : geïnstalleerd
  • Verwarming : gas cv

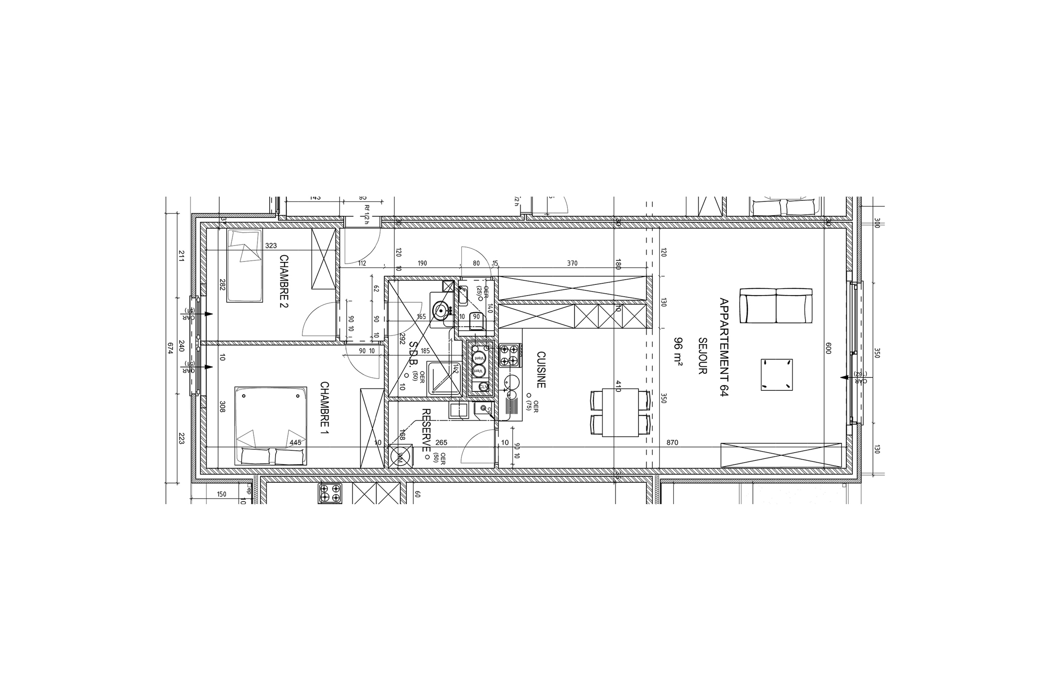
  • Bew. opp. 96m2

In de buurt

Omgeving

,

Voorzieningen

Winkels : ja

Openbaar vervoer : ja

Scholen : ja

Sporthal : -

Snelweg : ja

Oriëntatie

Vanaf het terras : zuidoosten

Stuur naar een vriend

*Er wordt geen informatie opgeslagen op dit formulier

  • Immo A+ Mouscron
Agence

Ik wil bezoeken

U bent de eigenaar
Ik verklaar kennis te hebben genomen met de voorwaarden en het  privacybeleid

Uw favorieten

# Hints

  • ... Nieuw

    Enghien

    €275 000

  • ... Nieuw

    Doornik

    €281 040