










Appartement 3 chambres, troisième phase du projet Le Sarma, à proximité du centre-ville de Mouscron et des axes routiers.
Prestations
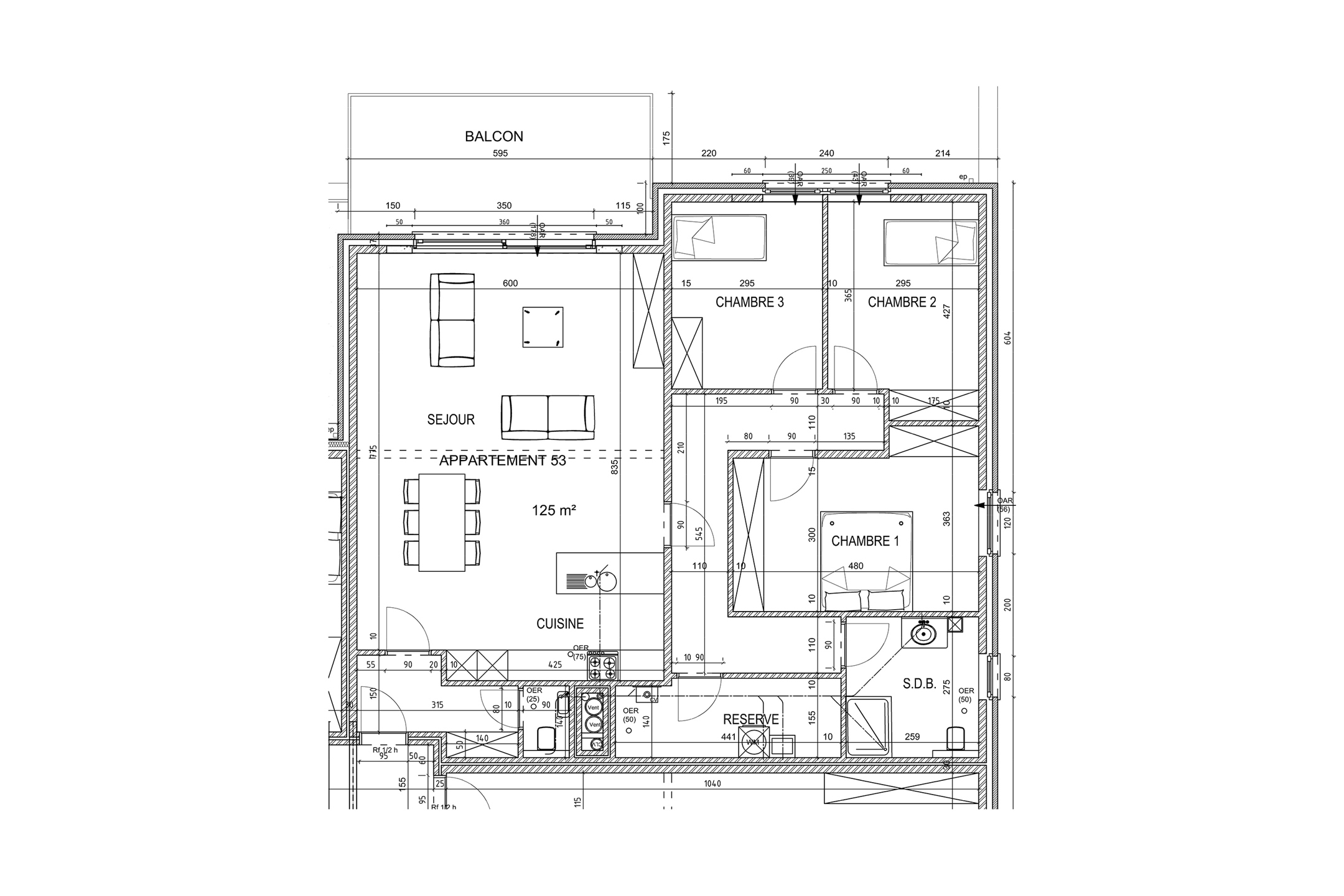
- Agencement : hall d`entrée desservant un WC séparé avec lave-mains, 3 chambres et une salle de bain avec douche, meuble vasque, colonne de rangement et miroir avec éclairage, séjour avec cuisine équipée ouverte, buanderie
- Espaces extérieurs : terrasse
- Confort et commodités : ascenseur
Finitions
- Menuiseries : isolation thermique et acoustique, châssis double-vitrage en PVC ou en aluminium blancs à l`intérieur et dans les tons gris à l`extérieur, tablettes extérieures des fenêtres en pierre naturelle ou équivalent, portes intérieurs prêtes à peindre avec encadrement en bois,
- Chauffage : chauffage au gaz par chaudière à condensation, radiateurs thermostatiques
- Ventilation : système de ventilation simple flux de type C
- Revêtements de sol : carrelage céramique et plinthes
- Sécurité : vidéophonie
Possibilité d’acquérir un garage au prix de 29.000 € HTVA
PEB visé : A
Livraison prévue 1er trimestre 2026
Prix affichés hors frais - Vente sous régime des droits d`enregistrement (12,5 %) sur le terrain, éligible à 3 % sous conditions, et de la TVA sur la construction (21 %), éligible à 6% sous conditions
Renseignements et visite : Alexandra au +32 472 27 03 42
Retrouvez toutes les informations sur ce projet sur notre site www.immoaplus.be
Les surfaces indiquées ne sont pas des surfaces habitables mais des surfaces brutes, selon le code de mesurage appliqué en Belgique
Publicité à caractère non contractuel et ne constituant pas une offre
Les propriétaires se réservent le droit de décision, d`acceptation ou non sur toute(s) offre(s) soumise(s) pour leur bien
centre ville,
Boutiques : oui
Transport en commun : oui
Ecoles : oui
Salle de Sport : -
Autoroute : oui
De la terrasse : sud-est