Le long d`une route de transit entre Ledegem et Moorsele se trouve cette charmante propriété. Entourée de verdure, cette villa offre un sentiment de paix et de sérénité.Le terrain d`une superficie de 2.270 m² comprend un jardin à l`avant, une allée privée et un beau jardin à l`arrière. Au centre de la propriété se trouve une maison de caractère construite dans les années [..]
Le long d`une route de transit entre Ledegem et Moorsele se trouve cette charmante propriété.
Entourée de verdure, cette villa offre un sentiment de paix et de sérénité.
Le terrain d`une superficie de 2.270 m² comprend un jardin à l`avant, une allée privée et un beau jardin à l`arrière. Au centre de la propriété se trouve une maison de caractère construite dans les années 1970.
La maison dispose de grandes fenêtres et d`un faîtage ouvert dans le salon, ce qui crée une atmosphère chaleureuse et un caractère unique.
Cette propriété indépendante a été soigneusement entretenue au fil des ans, de sorte que les éléments authentiques ont été bien préservés.
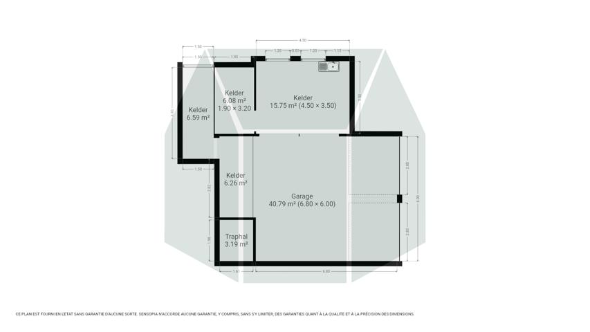
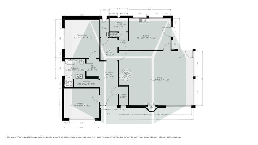
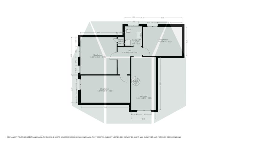
La villa dispose également de deux garages intérieurs, de quatre chambres, de deux salles de bains, d`un séjour lumineux avec cheminée en pierre et parquet massif, de radiateurs muraux, d`une cuisine avec table de petit déjeuner, d`une terrasse et de caves sèches.
Bien qu`ayant besoin d`être modernisée, la maison offre la possibilité de la rénover entièrement à votre goût et d`en faire la maison de vos rêves.
Enfin, ce terrain est situé dans une zone d`habitation au sens large, c`est-à-dire que les fonctions secondaires suivantes sont autorisées : professions libérales, ateliers de travail, entrepôts,... d`une superficie maximale de 200 m².
Vous souhaitez donner votre propre empreinte à ce bien ? Alors n`hésitez pas trop longtemps, car cette opportunité unique est à saisir !
N`hésitez pas à nous contacter pour plus d`informations :
Téléphone : 056 942 942
E-mail : thibault.f@dlgroupe.com
Lire plus